CASTELLAR di SALUZZO (Cn) - Casa libera a tre lati

248.000 €

casa indipendente a tre lati

superficie catastale abitativa piano terra:  97,00 m2

superficie catastale abitativa piano primo:  112,00 m2

superficie catastale magazzino/garage:  44,00 m2

superficie catastale tettoia:  32,00 m2


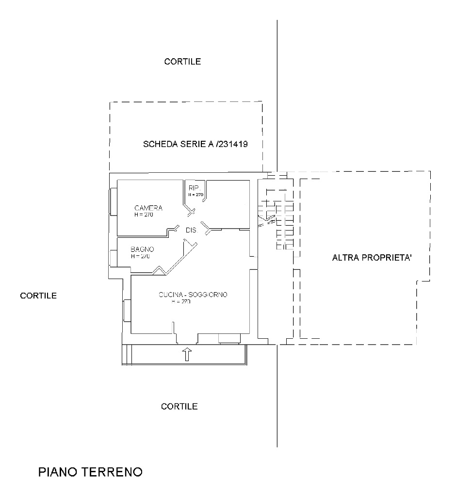
PIANO TERRA:

soggiorno

angolo cottura

una camera

stireria

ripostiglio

bagno


PIANO PRIMO:

ingresso

soggiorno

cucina

due camere

bagno

balcone

terrazzo


magazzino/garage

cortile

orto

giardino


infissi esterni doppio vetro / legno 


riscaldamento autonomo

a radiatori

alimentato a gpl

caminetto 


classe energetica:  G

EP gl,nren:  338,63 kWh/m2anno

EP gl,ren:  0,58 kWh/m2anno 


Riferimento: SI V/709

VENDITA

CASTELLAR di SALUZZO (Cn) - Casa libera a tre lati

Zona collinare vicinanze Castello in ottima posizione soleggiata tutto l'anno, casa libera a 3 lati e composta di 2 unità abitative. Al piano terra, alloggio recentemente ristrutturato di soggiorno con angolo cottura e caminetto, una camera, disimpegno, bagno, stireria e ripostiglio - al piano primo con accesso indipendente, ingresso, soggiorno, cucina, due camere, bagno, balcone e ampio terrazzo - magazzino/garage al piano terra e tettoia.

Cortile comune ai due alloggi, orto e giardino.

S. I. S. Immobiliare:
Italia:  12030 Manta (Cn)
Francia:  06300 Nice (06) - 06400 Cannes (06) - 06130 Grasse (06)

Massimo
BUSSONE

+39.335.24.96.67
sisimmobiliare.massimo@gmail.com
+39.335.24.96.67<br>
sisimmobiliare.massimo@gmail.com
Request more information for this property